Liste | Bilder

N°865 + INFO
Name
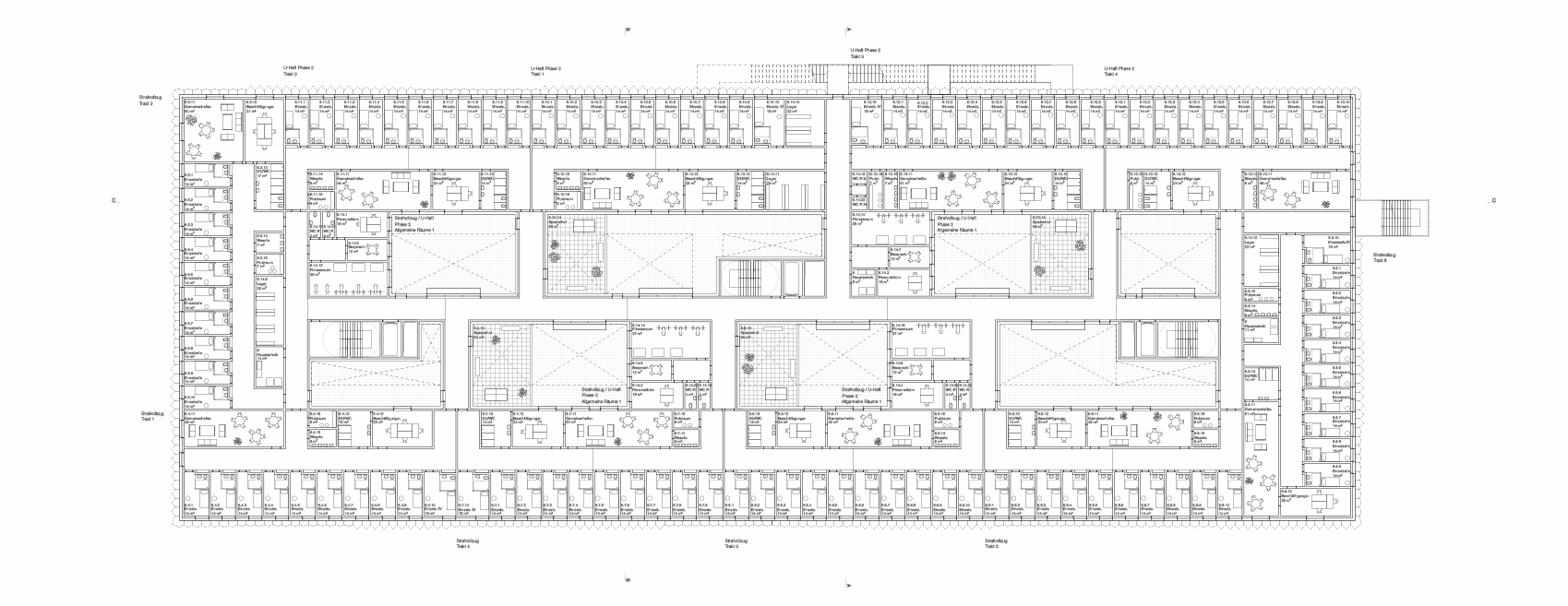
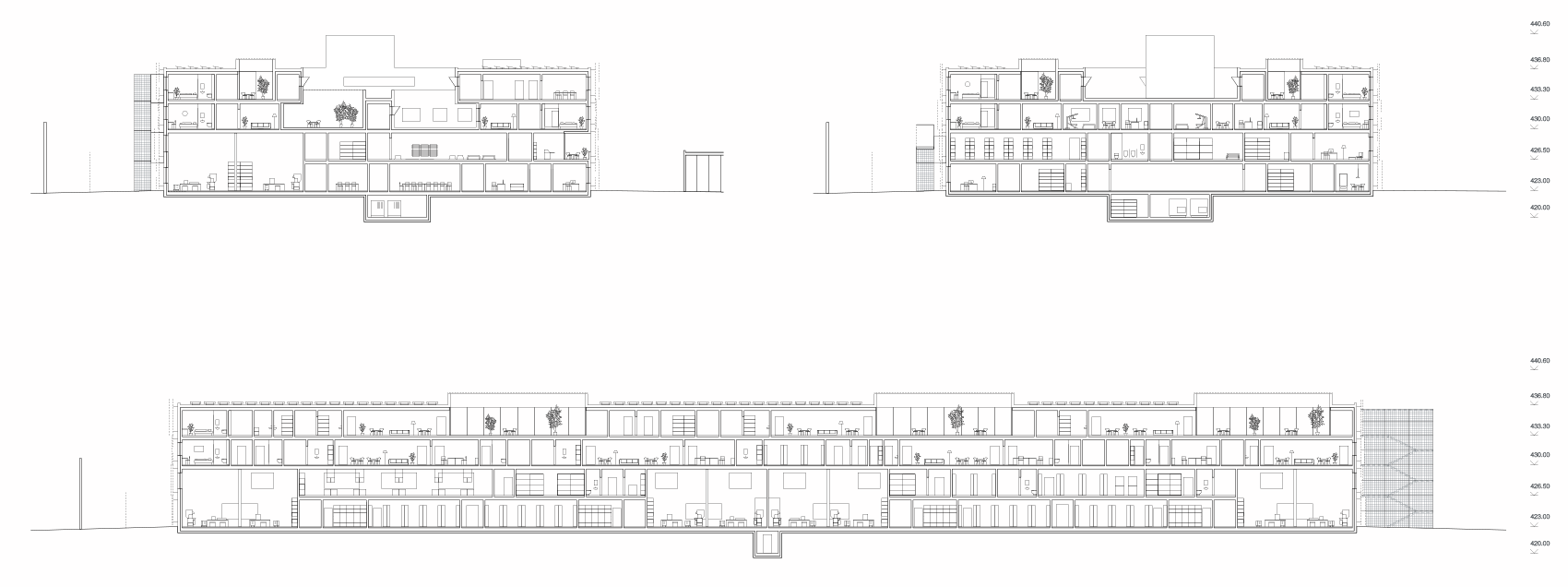
Zentralgefängnis Solothurn
Ort
Flumenthal
Jahr
2021
Kategorie
Projektwettbewerb
Auftraggeber
Kanton Solothurn
Renderings

Tejo Collective, Lisbon; Miguel Cavaleiro

Modell und Modellbilder

Zaborowsky Modellbau GmbH, Zürich

Team

Architektur:
DÜRIG AG, Zürich
Jean-Pierre Dürig, Joshua Brägger

Statik:
Dr. Deuring + Oehninger AG, Winterthur
Martin Deuring

Gebäudetechnik:
Amstein + Walthert AG, Zürich
Patrik Stierli

Landschaftsarchitektur:
KuhnLandschaftsarchitekten GmbH, Zürich
Stephan Kuhn

Baumanagement:
Demmel Bauleitungen und Beratungen AG
Reinhold Stukator

Sicherheitsexperten:
Amstein + Walthert Sicherheit AG, Buchs
Martin Hausmann

Brandschutz:
Siplan AG, Bern
Rolf Schürch