Liste | Bilder

N°486 + INFO
Name
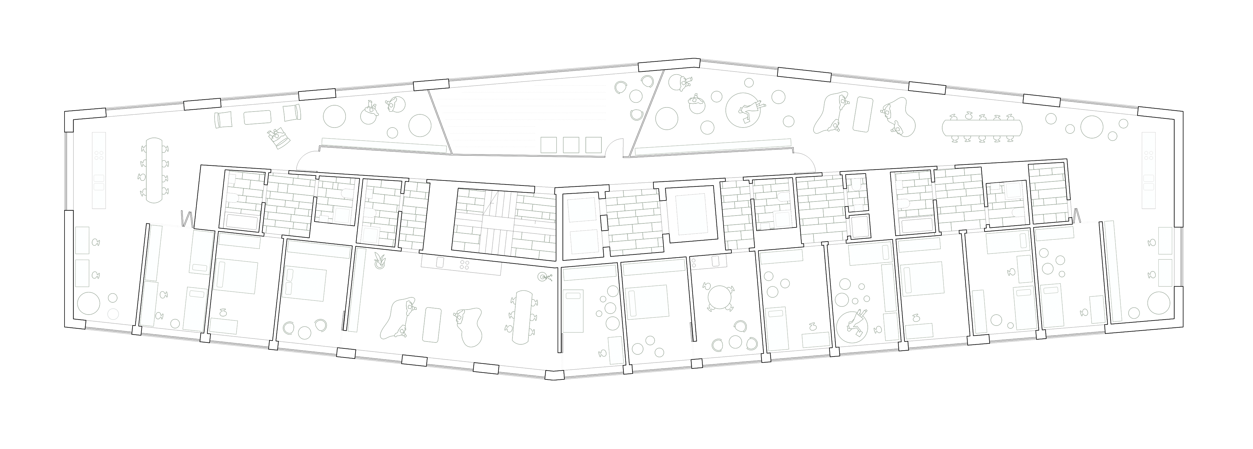
Wohn- und Gewerbesiedlung Kalkbreite
Ort
Zürich
Jahr
2008
Kategorie
Projektwettbewerb
Auftraggeber
Stadt Zürich
Modell

Zaborowsky Modellbau GmbH, Zürich

Team

Architektur:
Jean-Pierre Dürig, Raphael Bösch, Chandiramani Nimita, Gian Paolo Ermolli, Caspar Kemper, Tobias Noe, Andreas Schmid

Gebäudetechnik:
Todt Gmür & Partner AG

Bauingenieur:
MWV Bauingenieure AG