Liste | Bilder

N°108 + INFO
Name
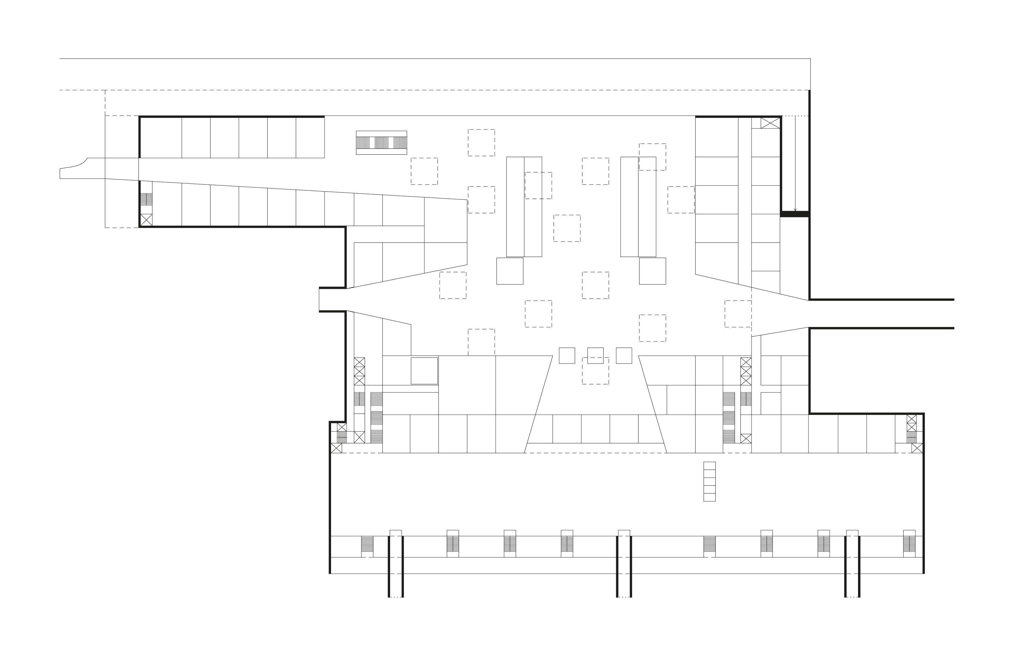
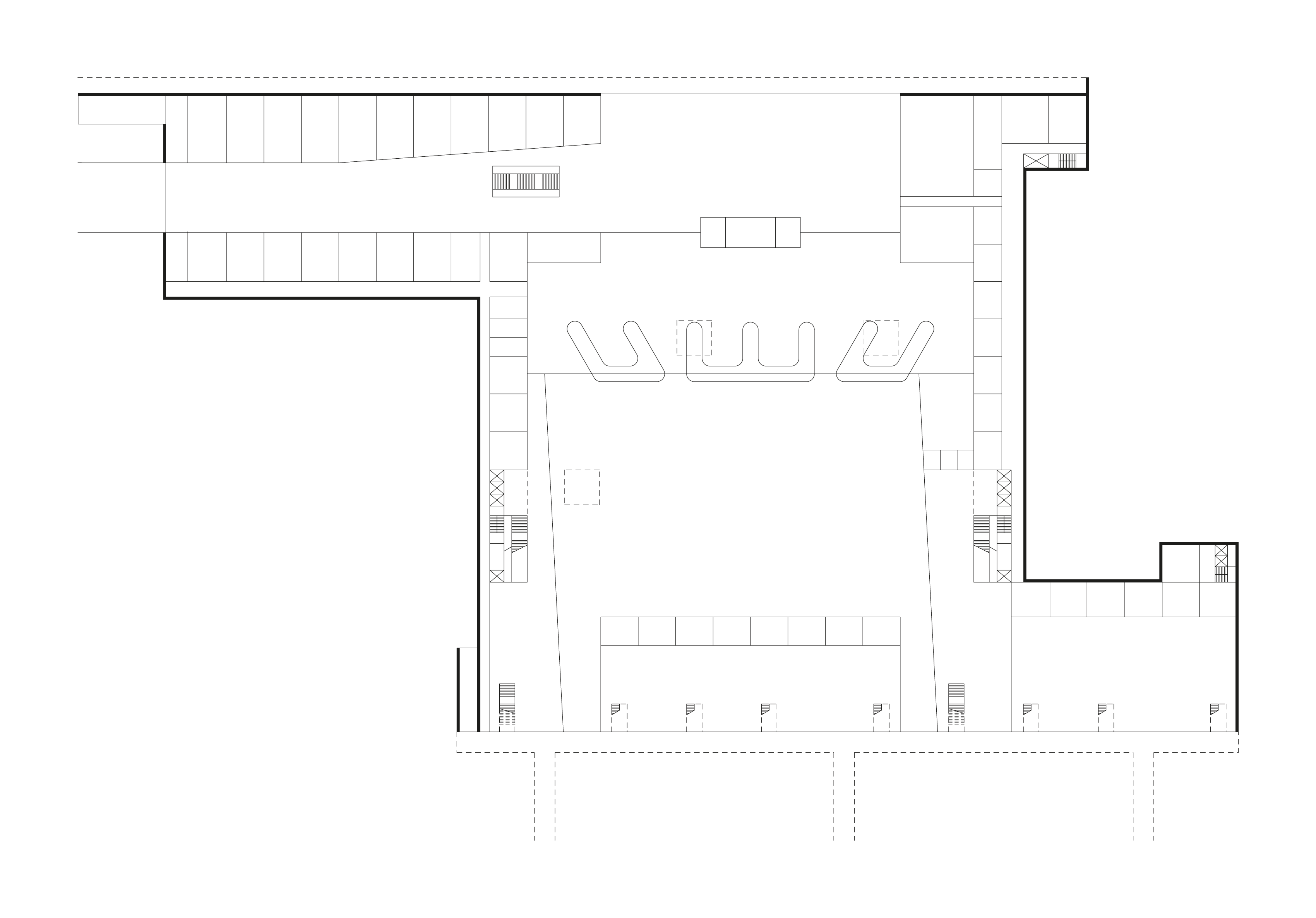
Terminal T3, Flughafen Stuttgart
Ort
Stuttgart (DEU)
Jahr
1998
Kategorie
Projektwettbewerb
Auftraggeber
Flughafen Stuttgart
Team

Architektur:
Dürig & Rämi: Jean-Pierre Dürig