Liste | Bilder

N°024 + INFO
Name
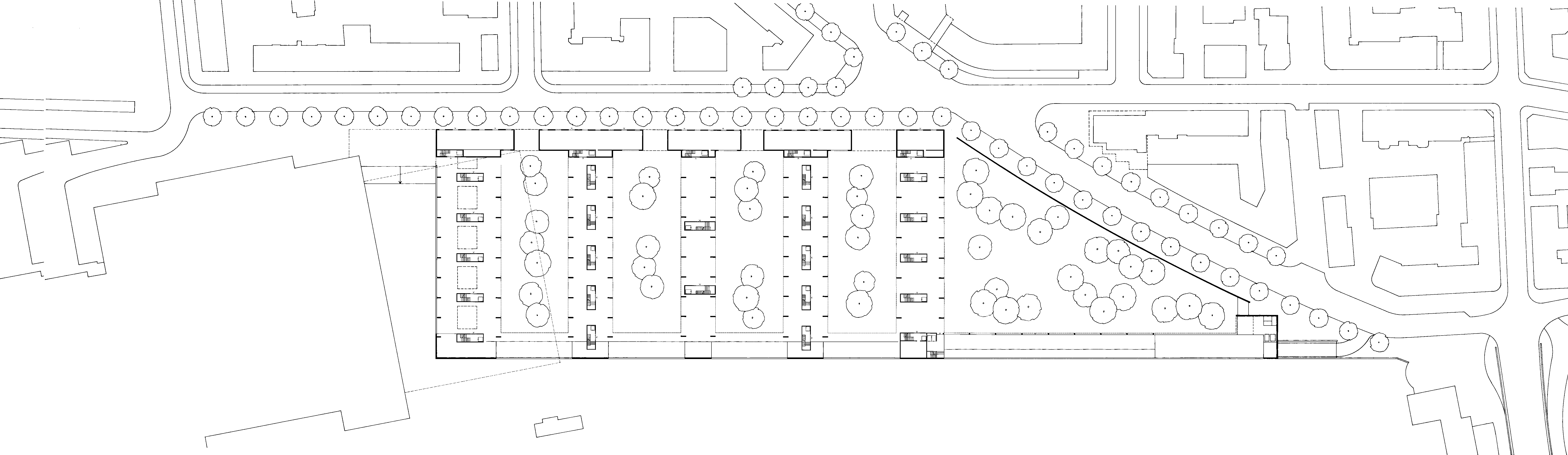
Röntgenareal
Ort
Zürich
Jahr
1990
Kategorie
Projektwettbewerb
Auftraggeber
SBB
Team

Dürig & Rämi: Jean-Pierre Dürig, Philippe Rämi, Eugen Eisenhut, Stefan Müller