Liste | Bilder

N°583 + INFO
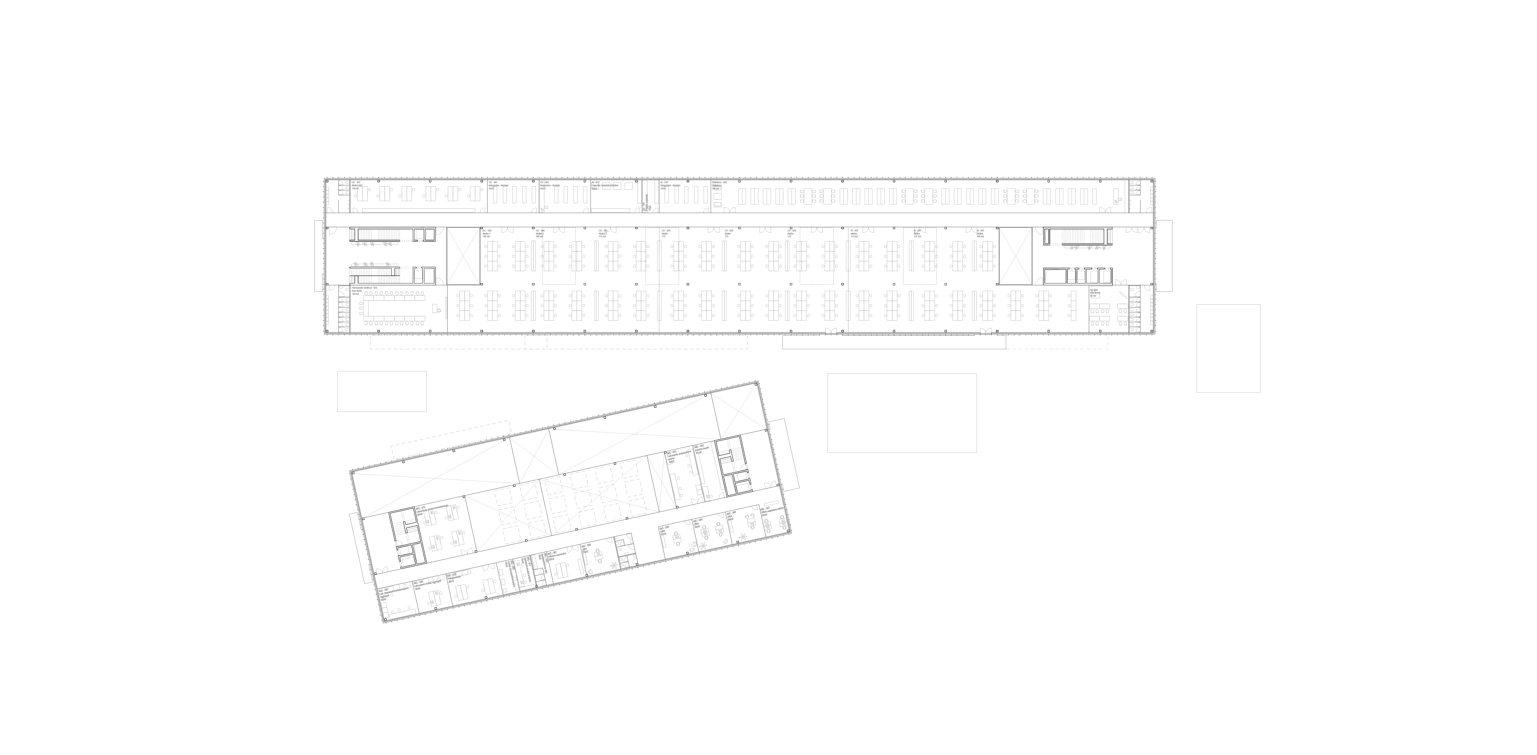
Name
Campus SUPSI Mendrisio
Ort
Mendrisio
Jahr
2012
Kategorie
Projektwettbewerb, 2. Preis
Auftraggeber
Kanton Tessin
Team

Architektur:
Jean-Pierre Dürig, Gian Paolo Ermolli

Bauingenieur:
Fürst Laffranchi Bauingenieure GmbH

HLKSE:
Amstein + Walthert AG

Brandschutz:
Amstein + Walthert AG

Bauphysik:
MORE Engineering S