Liste | Bilder

N°753 + INFO
Name
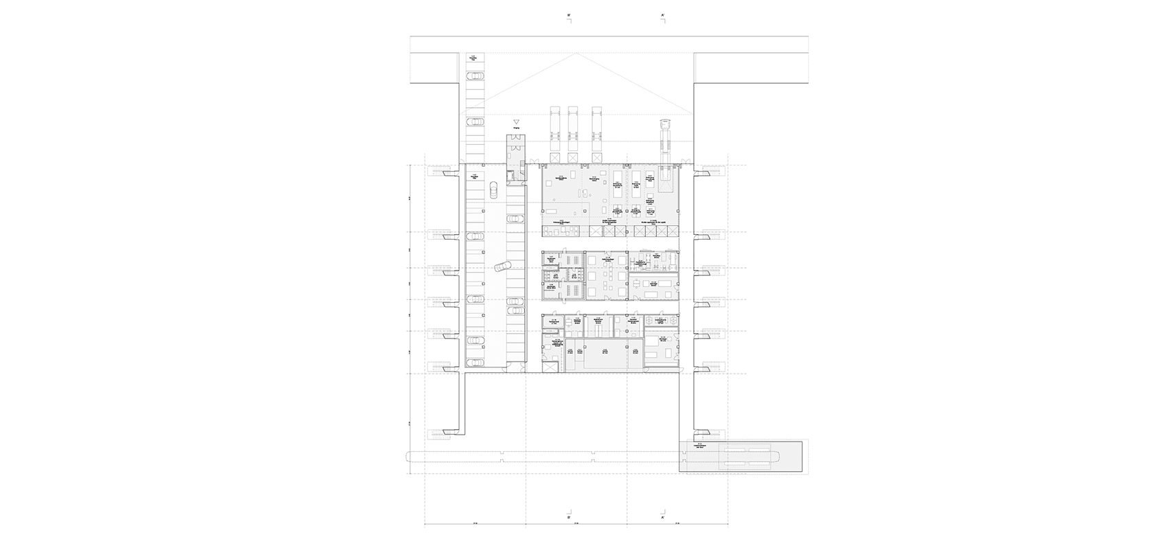
BLS-Werkstätte Chliforst-Nord
Ort
Chliforst
Jahr
2018
Kategorie
Studienauftrag
Auftraggeber
BLS AG
Renderings

maaars architektur visualisierungen, Zürich

Modell und Modellbilder

Zaborowski Modellbau GmbH, Zürich

Team

Architektur:
Dürig AG, Zürich
Jean-Pierre Dürig, Guillermo Dürig, Clara San Millán, Tommaso Giovannoli, Paul Kuhn, Tobia de Eccher, Tobias Noe

Generalplaner:
uas ag, Zürich
Jean-Pierre Dürig, Guillermo Dürig, Tobias Noe

Quantity surveillance, Bauüberwachung, Statik, Verkehrsplanung:
A. Aegerter & Dr. O. Bosshardt AG, Basel
Thomas Suter, Manuel Wieland, Olivier Bucher, Marcel D’Arco, Mathieu Grabherr, Urs-Martin Koch, Jean-Georges Trouillet

Landschaftsarchitektur:
SKK Landschaftsarchitekten AG, Wettingen
Joachim Wartner, Raphael Aeberhard, Simona Meyer, Manuela Hurni, Markus Müller

Gebäudetechnik (HVAC+E), Bauphysik, Brandschutz:
Amstein + Walthert AG, Zürich
Patrik Stierli, Heike Vetsch, Marcus Knapp, Mario Bleisch, Erich Füglister

Bahntechnik:
rs ingénieurs SA, Jongny
Philippe Strasser, Bruno Romeira, Maik Romeira, Etienne Miéville, Patrik Charmot